HOMES4YOU
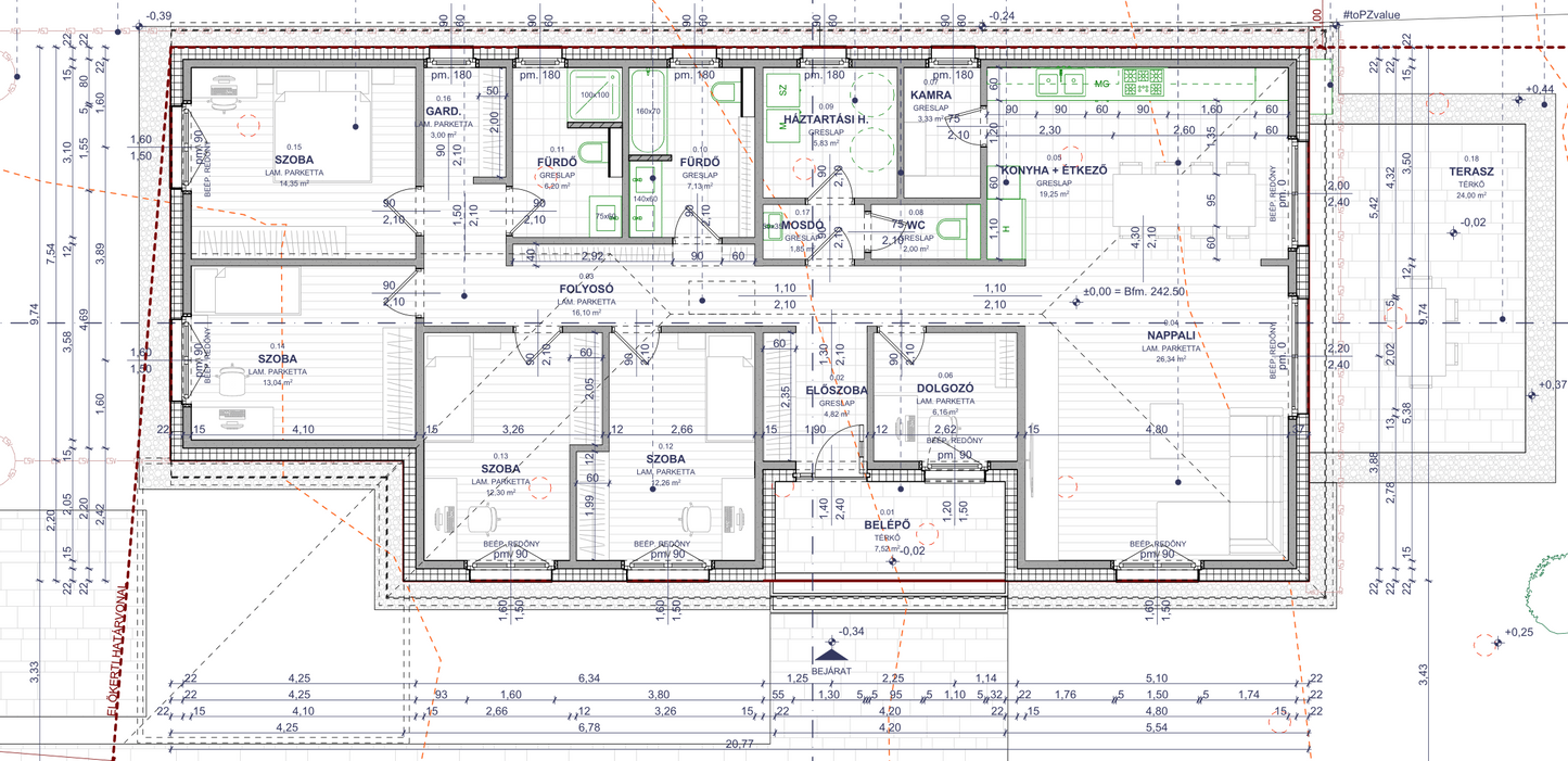
Vince – 186 m²
Vince – 186 m²
Nagycsaládosoknak
Bruttó terület: 186 m²
Nettó terület: 154 m²
5 szoba plusz nappalis
Földszintes otthon
Garázs, medence nincs az árban
| Áraink: | |
| Szerkezet-kész állapot: | 60.750.000 Ft |
| Külső-kész állapot: | 83.500.000 Ft |
| Fűtés-kész állapot: | 108.675.000 Ft |
| Kulcsrakész befejezés: | +19.701.000 Ft |
| Fenti áraink az Áfa-t nem tartalmazzák. | |

Kivitelezési csomagok
A folyamatosan változó jogszabályi környezet miatt előfordulhat, hogy egyes alaprajzok kötelező módosításra szorulnak.
FONTOS TUDNIVALÓ
A látványtervek kizárólag tájékoztató jellegűek, és olyan elemeket is tartalmazhatnak, amelyek nem részei az alap kivitelezési csomagnak, illetve felár ellenében rendelhetők (például medence, pergola, betonfödém, külső burkolatok, autóbeálló, kerítés).
A kivitelezés minden esetben a jóváhagyott építészeti és statikai tervek alapján valósul meg.
A kiegészítő elemek – mint például kavicsszivárgók, teraszok, járdák, esővíz-gyűjtők, szikkasztók, autóbeállók és kerítések – nem képezik automatikusan a standard kivitelezési csomag részét. Ezek megvalósítása minden esetben külön megállapodás tárgyát képezi.
Amennyiben a kiviteli szerződés egy adott elemre külön nem tér ki, úgy az nem része a vállalt teljesítésnek.
A kivitelezés kapacitás- és régiófüggő, ezért egyes extrák elérhetősége, ára és műszaki megoldása területenként és időszakonként eltérhet.
🧱 Szerkezetkész kivitelezési csomag részletei
I.1 Előkészítés
- Geodéziai kitűzés alapozás megkezdéséhez
- Földmunka és talaj-előkészítés
- Daru talpalási hely kialakítása
I.2 Alapozás
- 33 cm zúzott kő tömörítve
- 3 cm homok vagy murva tükör
- 1 réteg Dörken Delta MS talajnedvesség
elleni szigetelés (toldások ragasztva, áttöréseknél gallérozva) - 20 cm Austrotherm EPS150 lépésálló
szigetelés - 1 réteg elválasztó fólia
- 25 cm vasbeton monolit lemezalap
(betonozási hibahatár 2 cm) - Tervek szerinti csatorna felállás és
szennyvízkiállás, illetve villanybetáp a közművek csatlakozásához
I.3 Felmenő
szerkezet
- Liapor (vasalt könnyűbeton kerámia
kompozit LC16-18) falpanelek: megrendelővel előre egyeztetett, gyártó
által elkészített statikai és gyártmánytervek szerint - falakban acél merevítő szerkezetek
- Külső határoló falak vastagsága 15 cm,
belső tartófalaké 15 cm, válaszfalaké pedig 12 cm - Előre kialakított elektromos vezetékek
védőcsövei és osztódobozai, kapcsolók, konnektorok és termosztátok helyei,
illetve a vízvezetékekhez előkészített horonymarások - 25 cm vastag monolit betonfödém statikai
tervek szerint (kétszintes épület esetén)
Belső lépcső (kétszintes épület esetén)
Előregyártott gipszbeton beltéri lépcső
I.4 Fedélszék,
tetőfedés, bádogozás
Alább részletezett
födém típus nem járható és pakolható.
- 10x15 cm talpszelemen - külső határoló
falakhoz rögzített - Szeglemezes rácsos fedélszék
- Max. tető dőlésszög 35°
- Ellenléc és páraáteresztő vízzáró fólia
- Tetőhéjalás: Bramac Novo vagy Terrán Synus
betoncserép - antracit, piros vagy barna színben - Bádogozás: a cseréppel megegyező színben,
horgonyzott acél ereszcsatornák - Esetleges oromfal (típusterv függő) és
ragalja (max. 50 cm) kialakítása - OSB lappal kivitelezve
🏗️ Külsőkész kivitelezési csomag részletei
II.1 Lábazati hőszigetelés
- Vízszigetelés – az alap hőszigetelése alatti Dörken Delta MS szerelőbetont kiváló és talajnedvesség ellen védő lemez összeragasztva Dörken Delta Thene lábazati vízszigeteléssel előírás szerint a falazat alsó 30 cm-ig
- Hőszigetelés – zárt cellás XPS hőszigetelőlemez, ragasztva a tervdokumentáció szerinti vastagságban
II.2 Homlokzati hőszigetelés
- 25 cm Austrotherm EPS80 hőszigetelés, ragasztás, dűbelezés, hálózás, alapréteg
- Nemesvakolat: 1,5 mm szemcseméretű dörzsölt/koptatott felület, standard színválaszték szerint
- esetleges oromfal (típusterv függő) és ragalja szigetelése - 25 cm, illetve 2 cm hőszigeteléssel, vakolva
II.3 Külső nyílászárók
- 5 légkamrás, 3 rétegű üvegezésű nyílászárók (Kömmerling AD76 vagy azzal megegyező minőségű termék) (Ug=min 0,7 W/m²K)
- 1 db választható bejárati ajtó kilinccsel
- 1 db emelő-toló teraszajtó 350 cm szélességig
- 1 oldali RAL szalagos ablak beépítés
- Külső párkányok: nyílászárókkal megegyező színű lemezpárkány
- Hörmann szekcionált, elektromos garázskapu (amennyiben a házhoz tartozik garázs)
II.4 Árnyékolás és szúnyoghálók
Alább felsorolt tételeket a standard műszaki tartalom abban az esetben tartalmazza, amennyiben a kivitelezést minimum nettó 110 m² feletti típusház fűtéskész vagy kulcsrakész fokozatában végzi Kivitelező. Egyéb esetekben (nettó 110 m² alatti típusház fűtéskész fokozat kivitelezése, illetve szerkezet vagy külső kulcsrakész kivitelezés) Kivitelező felárat számol.
- Elektromos, rejtett tokos redőnyök nyílászárókkal megegyező színben
- Szúnyoghálók a nyílászárókkal megegyező színben
🔥 Fűtéskész kivitelezési csomag részletei
Mit nevezünk fűtéskész állapotnak?
Fűtéskész állapotnak azt nevezzük, amikor az épület szerkezetileg és gépészetileg elkészült, a fűtési–hűtési rendszer telepítésre került, az ingatlan fűthető és temperálható, azonban a végső belső burkolatok, szaniterek és esztétikai befejezések még nem részei a kivitelezésnek.
A fűtéskész állapot részletes bemutatását az alábbi videó szemlélteti:
👉 https://www.youtube.com/watch?v=CTEi4C5I4VM
III.1 Víz, villany, csatornaszerelés
- Villany alapszerelés - típustervenként változó darabszámú max. kiállás (70–150 db)
- Schneider Asfora vagy minőségben, árban megegyező alap szerelvények és azok szerelvényezése
- Épületenként egy főelosztóval
- Érintésvédelmi felülvizsgálat
- Víz alapszerelés alaprajz szerinti kiállások darabszámával (zuhanyzó, kád, wc, mosdó, kézmosó, bojler, mosógép, mosogató és mosogatógép)
- Belső vízhálózat: présidomos több rétegű csőrendszer (PEX-AL-PEX jelleg)
- Szennyvíz: műanyag csőrendszer a terv szerint
- A közmű rákötést a házból való kiállástól a mérőóráig 5 méteren belül tartalmazza az ár
III.2 Gépészet – fűtés, hűtés, szellőztetés, HMV
- Hőszivattyús fűtés/hűtés rendszer gépészeti tervekben meghatározott teljesítmény szerint (AUX vagy GREE hőszivattyú)
- Hőszivattyús vizes padlófűtés gépészeti tervek szerint (kétszintes épületek esetén)
- Szellőztető rendszer gépészeti tervek szerint (Vortice 350 Avel)
- Ariston Nuos Plus 150 L WiFi hőszivattyús bojler
III.3 Aljzatképzés
- Tapadóhíd (Mapei Primer G vagy azzal megegyező műszaki tulajdonságú)
- 5 cm estrich beton
- úsztatott padlóréteg (kétszintes épületek esetén)
III.4 Födém
- Gipszkarton álmennyezet (duplavázas kialakítással)
- 1 réteg légzáró, párazáró fólia (REFLEX Hőtükrös légpárnás fólia 92-MLP50)
- Fújt cellulóz födémszigetelés 40 cm vastagságban
🔑 Kulcsrakész befejezés – részletek
IV.1 Burkolás
- Hidegburkolatok és burkolás:
- padló: fürdőszoba, WC, mosókonyha/háztartási helyiségben
- fal: mennyezetig fürdőszobában és WC-ben
- anyag költségkeret: nettó 20 000 Ft/m²
- Melegburkolatok és burkolás:
- szobák, nappali, konyha, étkező, előtér, közlekedő
- anyag költségkeret: nettó 10 000 Ft/m²
IV.2 Festés
- Falak és mennyezet 2x és 2x festése – fehér
- Q3 minőségben
IV.3 Beltéri ajtók
- Keret, ajtólap, kilincsek
Anyag költségkeret: nettó 150 000 Ft / db
IV.4 Szerelvények
Lámpatestek
- Lámpatestek és azok szerelvényezése
Anyag költségkeret: nettó 70 000 Ft / db
Szaniterek
- Szaniterek és azok szerelvényezése
Anyag költségkeret: nettó 100 000 Ft / db