HOMES4YOU
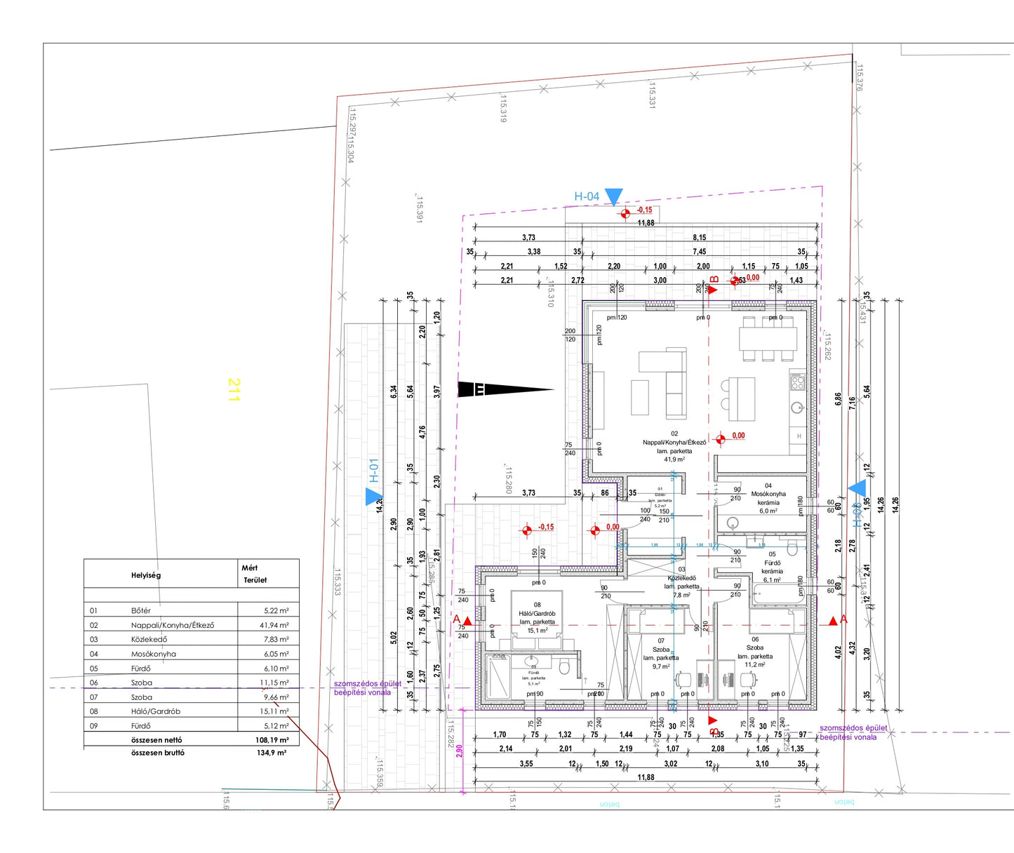
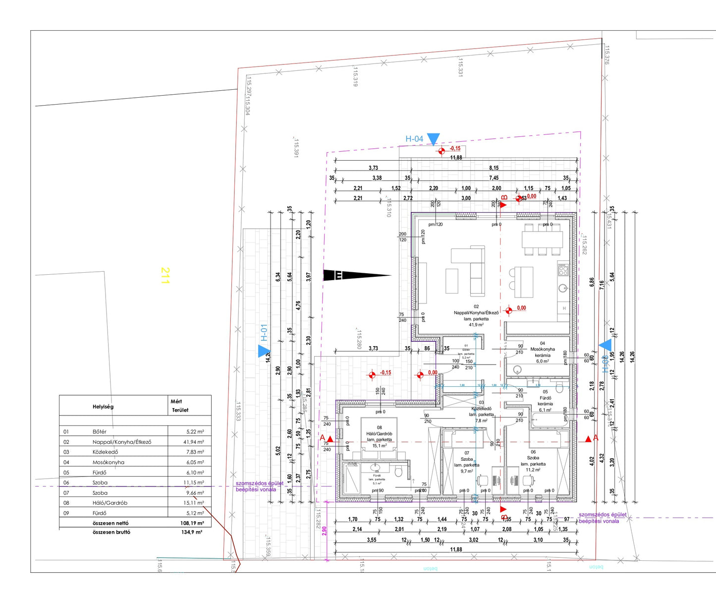
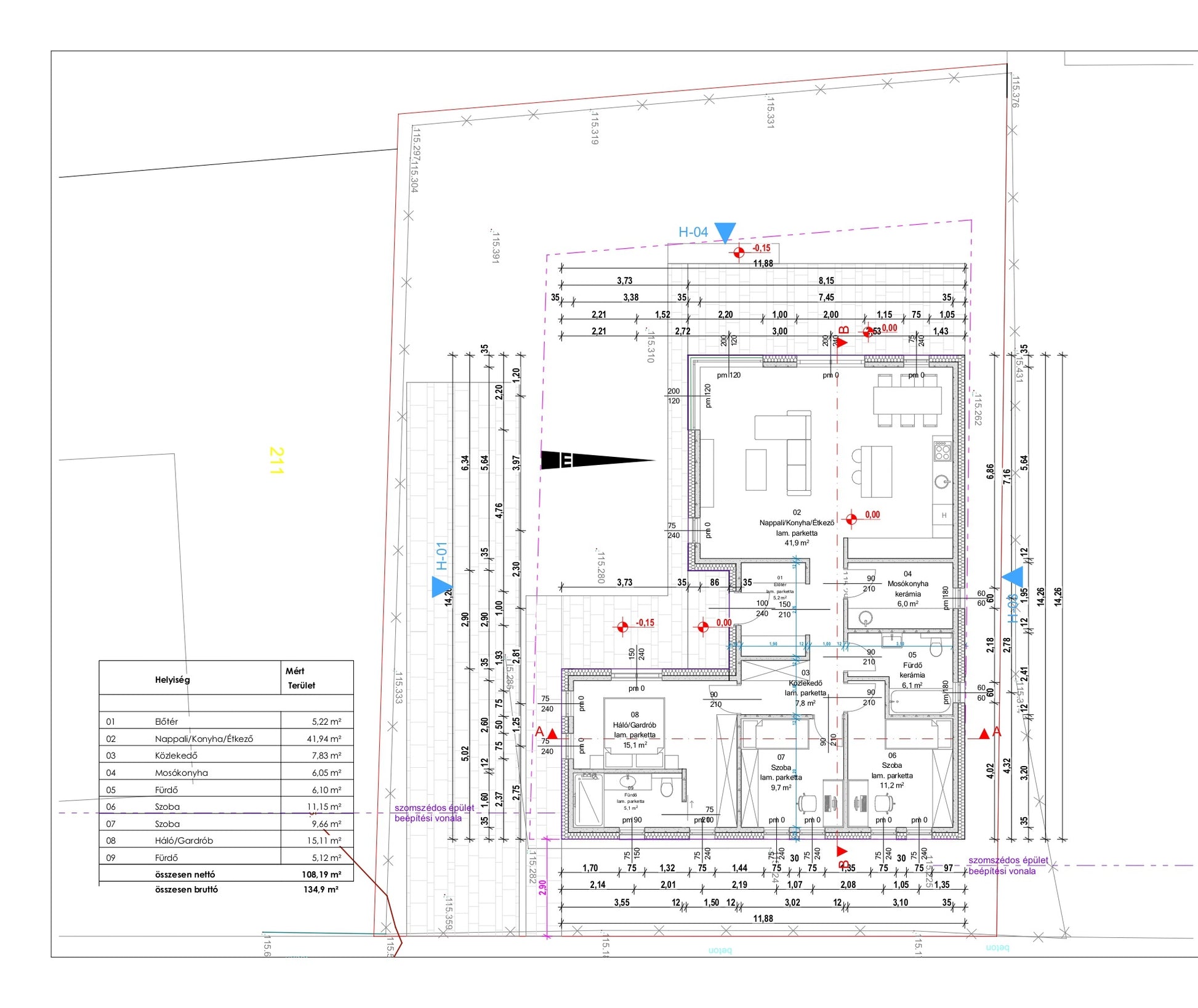
Gina – 135 m²
Gina – 135 m²
Bruttó terület: 135 m²
Nettó terület: 109 m²
3 hálószobás verzióban
Földszintes otthon
A++ energetikai besorolás
Oldalhatárosan, vagy szabadonállóan beépíthető alaprajzokkal

FONTOS TUDNIVALÓ:A látványtervek tájékoztató jellegűek, és feláras, opcionális elemeket is tartalmazhatnak (pl. medence, pergola, betonfödém, külső burkolatok). A kivitelezés kizárólag engedélyezett építészeti és statikai tervek alapján valósul meg.Az olyan kiegészítők, mint a kavicsszivárgók, teraszok, járdák, esővíz-gyűjtők és szikkasztók, külön megrendelés tárgyát képezik.
Kivitelezési csomagok
Szerkezet-kész kivitelezési csomag részletei
Az alapár tartalmazza:
- Változtatások nélküli tervadaptáció
- Szigetelt lemezalap
- Külső és belső Liapor falak, 280 cm panelmagassággal (kb. 260–265 cm belmagasság)
- Elektromos kiállások előkészítése
- Vízvezetékek helyének horonymarása
- Tetőszerkezet: szeglemezes rácsos tartószerkezet, maximum 25° hajlásszögig
- Tetőhéjazat: betoncserép borítás (Bramac Novo vagy Terran Synus típusú beton cserepek)
- Tetőcserepezés és bádogozás
- Ereszcsatorna a tetőcseréppel megegyező színben
- E-napló vezetése (a megnyitás a megrendelő feladata az ügyfélkapun keresztül)
Külső-kész kivitelezési csomag részletei
Az alapár tartalmazza:
- Változtatások nélküli tervadaptáció
- Szigetelt lemezalap
- Külső és belső Liapor falak 280 cm panelmagassággal (kb. 260–265 cm belmagasság)
- Elektromos kiállások előkészítése
- Vízvezetékek helyének horonymarása
- Tetőszerkezet: szeglemezes rácsos tartószerkezet, maximum 25° hajlásszögig
- Tetőhéjazat: betoncserép borítással (Bramac Novo vagy Terran Synus típusú beton cserepek)
- Tetőcserepezés és bádogozás
- Ereszcsatorna a tetőhéjazattal megegyező színben
- Lábazati vízszigetelés az építészeti tervek szerint
- Külső homlokzati hőszigetelés: 20 cm vastag fehér EPS80 (U-érték min. 0,16 W/m²K)
- Külső színezés világos színben, 1,5 mm-es szemcsenagyságú dörzsölt vakolattal (Baumit DuoTop)
- Nyílászárók: kívül színes, belül fehér, Kömmerling AD76 melegperemes profil, 3 rétegű üvegezéssel (Ug érték min. 0,7 W/m²K)
- 1 db bejárati ajtó katalógusból választható - standard bejárati ajtó standard kilinccsel
- 1 db kétszárnyú teraszajtó helyett ajándék bukó-toló ajtó 3 méteres nyílásig
- E-napló vezetése (a megnyitás a megrendelő feladata az ügyfélkapun keresztül)
Fűtés-kész kivitelezési csomag részletei
https://www.youtube.com/watch?v=CTEi4C5I4VM
Az alapár tartalmazza:
Tervezés, alapozás:
- Változtatások nélküli tervadaptáció
- E-napló vezetése (a megnyitás a megrendelő feladata az Ügyfélkapun keresztül)
- Szigetelt lemezalap kivitelezése
- Lábazati vízszigetelés az építészeti tervek szerint
Szerkezet:
- Külső és belső Liapor falak, 280 cm panelmagassággal (kb. 260–265 cm belmagasság)
- Szeglemezes rácsos tetőszerkezet (max. 25° hajlásszögig)
- Tetőhéjazat Bramac Novo vagy Terran Synus típusú beton cserepek
- Tetőcserepezés és bádogozás
- Ereszcsatorna a tetőhéjazattal megegyező színben
Hőszigetelés, vakolás:
- Külső homlokzati hőszigetelés: 20 cm vastag fehér EPS80 (U-érték min. 0,16 W/m²K)
- Külső színezés világos színben, 1,5 mm-es szemcsenagyságú dörzsölt vakolattal (Baumit DuoTop)
- Fújt cellulóz födémhőszigetelés: 30 cm vastagságban
Nyílászárók:
- Külső színes, belső fehér Kömmerling AD76 melegperemes profilú nyílászárók, 3 rétegű üvegezéssel (Ug = min. 0,7 W/m²K)
- 1 db bejárati ajtó katalógusválasztékból - standard bejárati ajtó standard kilinccsel
- 1 db kétszárnyú teraszajtó helyett ajándék 3 méteres bukó-toló ajtó
Gépészet és előkészítések:
- Elektromos kiállások helyiségenként 5 db, szerelvényezéssel
- Vízvezetékek helyének horonymarása, vízvezeték alapszerelés
- Beépíthető WC-k vázszerkezete és szerelvényei (nyomógombbal, WC-csésze és ülőke nélkül)
- Aljzatbetonozás 5 cm vastagságig
- Gipszkarton álmennyezet egy réteg kartonnal
- Levegő-levegős hőszivattyús fűtés-hűtés rendszer
levegő-vizes hőszivattyús rendszer is kérhető felár ellenében - Hővisszanyerős szellőztető rendszer telepítése
Kulcsra-kész befejezésről bővebben
Szakipari munkák
Lokáció és kapacitás függvényében vállalunk szakipari kivitelezést.
Személyes vagy online konzultáció során készítünk egyedi ajánlatot az alábbi munkák elvégzésére:
- Beltéri ajtók és azok beépítése
- Glettelés és festés
- Hideg- és melegburkolatok készítése
- Szaniterek beépítése amiket megrendelő biztosít
Kérjen időpontot konzultációra, és valósítsuk meg együtt álmai otthonát!