HOMES4YOU
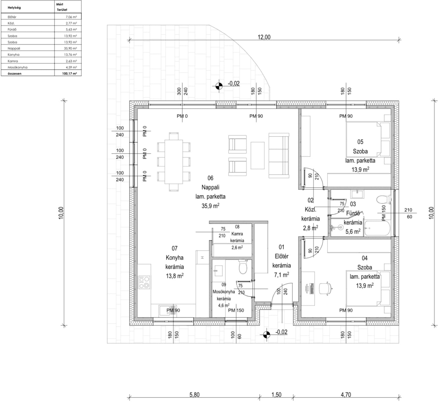
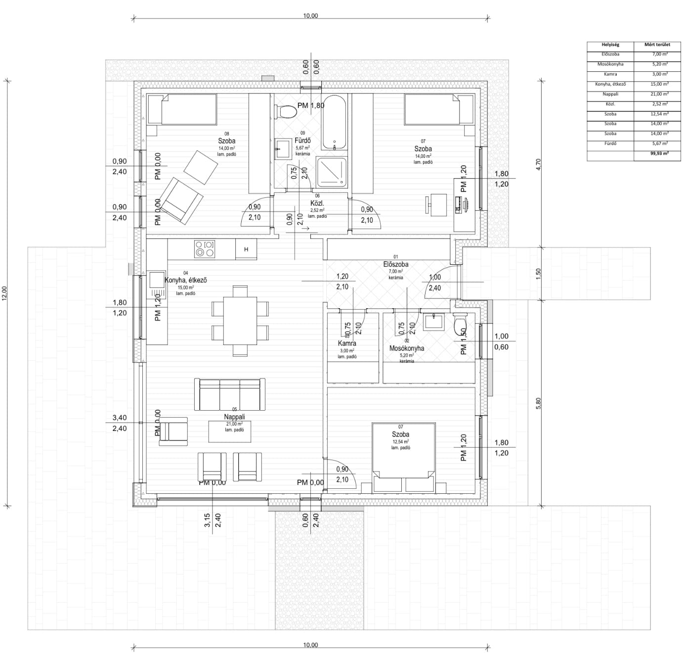
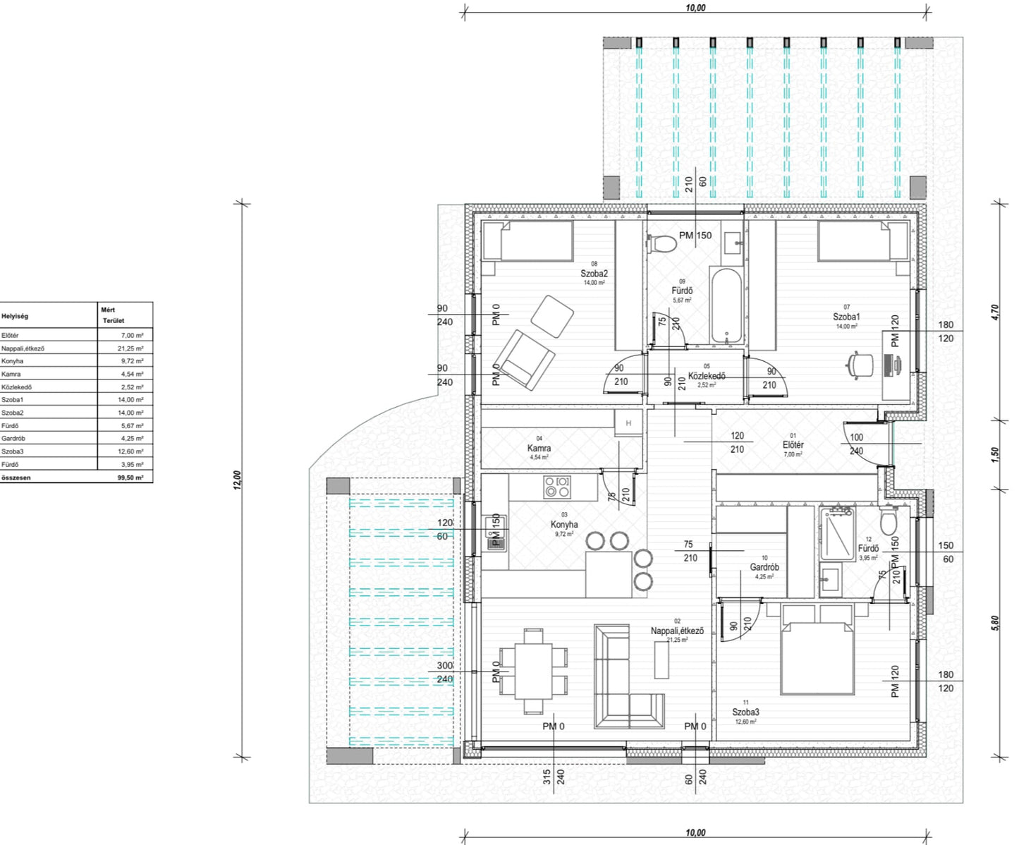
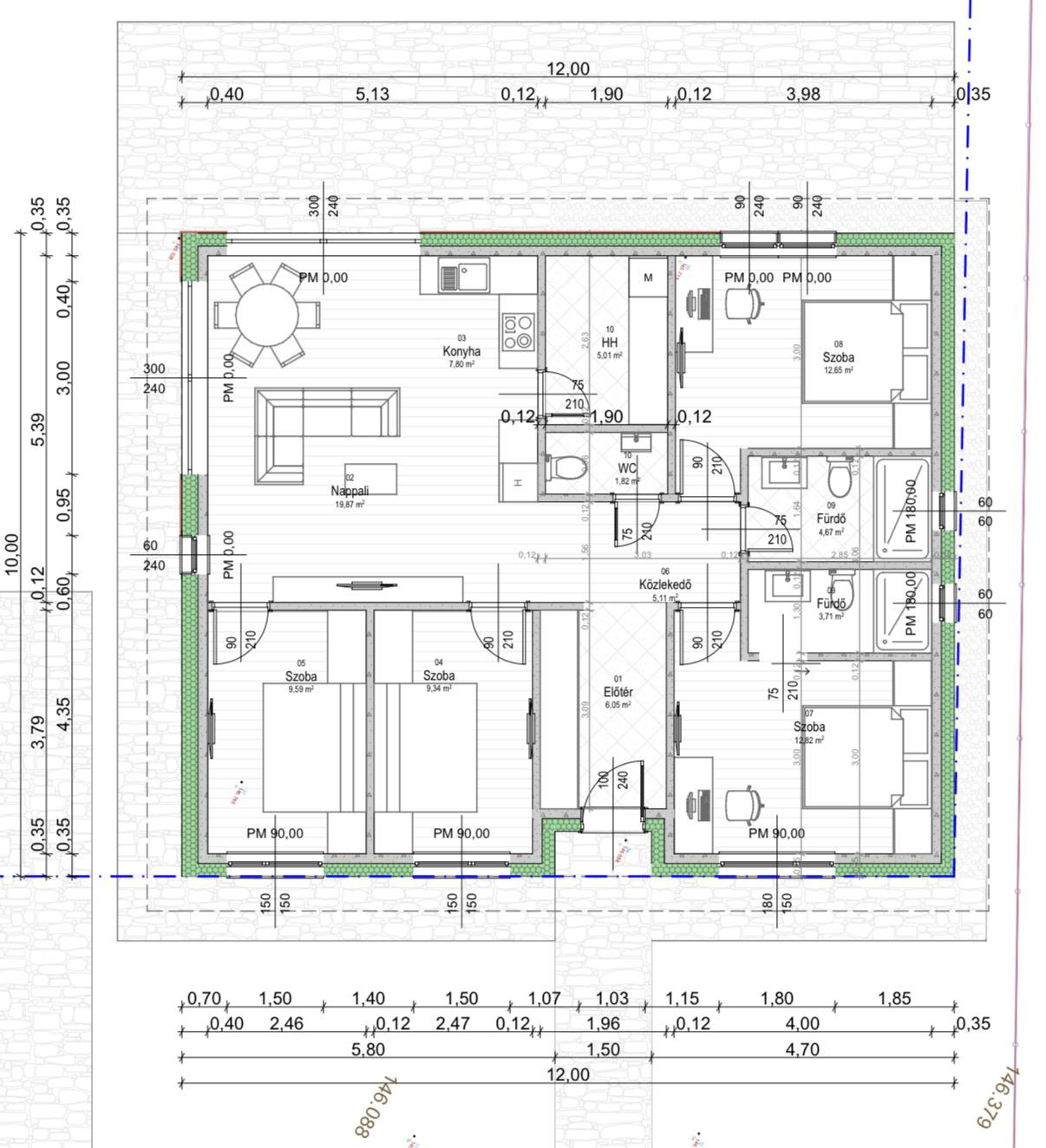
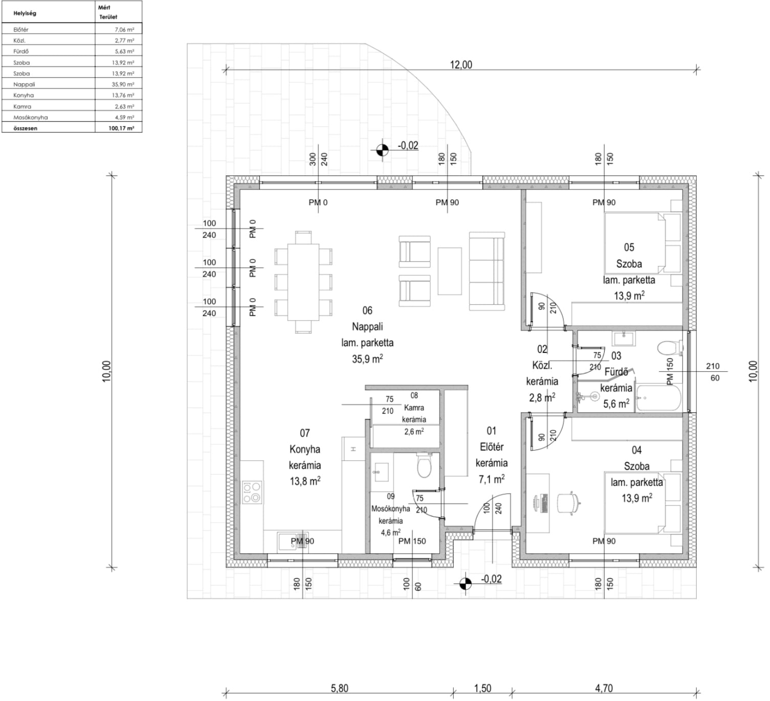
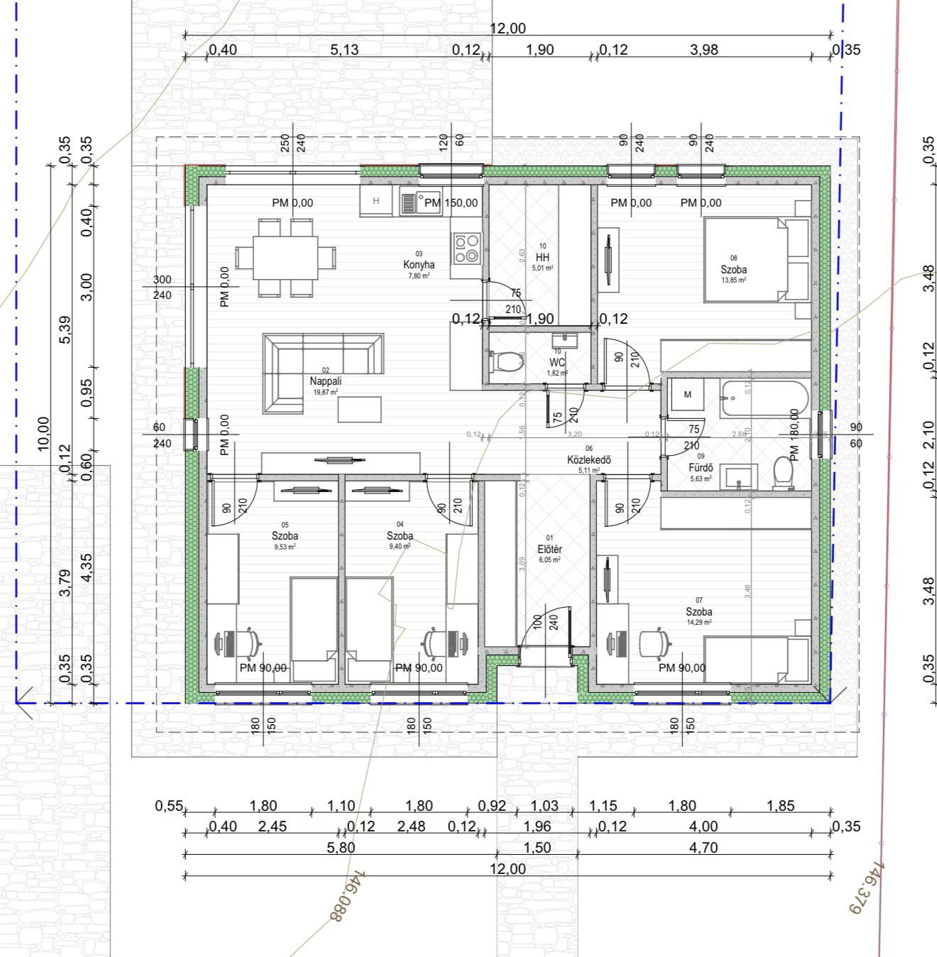
Bogi – 118 m²
Bogi – 118 m²
Vidéki idill
Bruttó terület: 118 m²
Nettó terület: 100 m²
2, 3, 4 hálószobás verzióban
Földszintes otthon
A++ energetikai besorolás
Oldalhatárosan, vagy szabadonállóan beépíthető alaprajzokkal
| Áraink: | |
| Szerkezet-kész állapot: | 38.880.000 Ft |
| Külső-kész állapot: | 52.650.000 Ft |
| Fűtés-kész állapot: | 71.800.000 Ft |
| Kulcsrakész befejezés: | +12.739.000 |
| Fenti áraink az Áfa-t nem tartalmazzák. | |

Kivitelezési csomagok
A folyamatosan változó jogszabályi környezet miatt előfordulhat, hogy egyes alaprajzok kötelező módosításra szorulnak.
FONTOS TUDNIVALÓ
A látványtervek kizárólag tájékoztató jellegűek, és olyan elemeket is tartalmazhatnak, amelyek nem részei az alap kivitelezési csomagnak, illetve felár ellenében rendelhetők (például medence, pergola, betonfödém, külső burkolatok, autóbeálló, kerítés).
A kivitelezés minden esetben a jóváhagyott építészeti és statikai tervek alapján valósul meg.
A kiegészítő elemek – mint például kavicsszivárgók, teraszok, járdák, esővíz-gyűjtők, szikkasztók, autóbeállók és kerítések – nem képezik automatikusan a standard kivitelezési csomag részét. Ezek megvalósítása minden esetben külön megállapodás tárgyát képezi.
Amennyiben a kiviteli szerződés egy adott elemre külön nem tér ki, úgy az nem része a vállalt teljesítésnek.
A kivitelezés kapacitás- és régiófüggő, ezért egyes extrák elérhetősége, ára és műszaki megoldása területenként és időszakonként eltérhet.
🧱 Szerkezetkész kivitelezési csomag részletei
- I. fokozat – Szerkezetkész kivitelezés
1.1 Előkészítés
- Geodéziai kitűzés alapozás megkezdéséhez
- Földmunka és talaj-előkészítés
- Daru talpalási hely kialakítása
1.2 Alapozás – szigetelt lemezalap
- 33 cm zúzott kő tömörítve.
- 3 cm homok vagy murva tükör.
- 1 réteg Dörken Delta MS talajnedvesség elleni szigetelés (toldások ragasztva, áttöréseknél gallérozva).
- 20 cm Austrotherm EPS150 lépésálló szigetelés
- 1 réteg elválasztó fólia
- 25 cm vasbeton monolit lemezalap (betonozási hibahatár 2 cm).
- Tervek szerinti csatorna felállás és szennyvízkiállás, illetve villanybetáp a közművek csatlakozásához
1.3 Felmenő szerkezet
- Liapor (vasalt könnyűbeton kerámia kompozit LC16-18) falpanelek: megrendelővel előre egyeztetett, gyártó által elkészített statikai és gyártmánytervek szerint
- Külső határoló falak vastagsága 15 cm, belső tartófalak 15 cm, válaszfalak 12 cm
- Az elektromos vezetékek védőcsövei és osztódobozai, a kapcsolók helyei, a termosztátok helyei és a vízvezetékek helyei előre ki vannak alakítva
- falakban acél merevítő szerkezetek
- U = min. 0,16 W/m2K
1.4 Fedélszék, tetőfedés, bádogozás
- Szeglemezes rácsos fedélszék
- Max. tető dőlésszög 35 °
- Ellenléc és páraáteresztő vízzáró fólia
- Tetőhéjalás: Bramac Novo vagy Terrán Synus betoncserép - antracit, piros vagy barna színben -
- Bádogozás: a cseréppel megegyező színben, horgonyzott acél ereszcsatornák
- Esetleges oromfal kialakítása OSB lappal és 25 cm szigeteléssel, vakolással
- eresz alatti regalja kialakítása (OSB lappal és 2 cm szigeteléssel, vakolva)
🏗️ Külsőkész kivitelezési csomag részletei
2. II. fokozat – Külső kész (standard tartalom)
2.1 Lábazati és homlokzati hőszigetelések, felületképzések
- 25 cm Austrotherm EPS80 hőszigetelés, ragasztás, dűbelezés, hálózás, alapréteg.
- Nemesvakolat: 1,5 mm szemcseméretű dörzsölt/koptatott felület, standard színválaszték szerint.
- Vízszigetelés – az alap hőszigetelése alatti Dörken Delta MS szerelőbetont kiváló és talajnedvesség ellen védő lemez összeragasztva Dörken Delta Thene lábazati vízszigeteléssel előírás szerint a falazat alsó 30 cm-ig
- Hőszigetelés – zárt cellás XPS hőszigetelőlemez, ragasztva a tervdokumentáció szerinti vastagságban
2.2 Külső nyílászárók
- 5 légkamrás, 3 rétegű üvegezésű nyílászárók (Kömmerling AD76 vagy azzal megegyező minőségű termék) (Ug=min 0,7 W/m2xK)
- 1 db választható bejárati ajtó kilinccsel
- 1 db emelő-toló teraszajtó 350 cm szélességig
- 1 oldali RAL szalagos ablak beépítés
- Külső párkányok: nyílászárókkal megegyező színű lemezpárkány
- Hörmann szekcionált, elektromos garázskapu (amennyiben a házhoz tartozik garázs)
2.3 Redőnyök és szúnyoghálók (fűtéskész megrendelés esetén tartalmazza az ár, szerk. v kk. kivitelezés esetén feláras)
- Elektromos, rejtett tokos redőnyök nyílászárókkal megegyező színben
- Szúnyoghálók a nyílászárókkal megegyező színben
- Nettó 110nmtől
🔥 Fűtéskész kivitelezési csomag részletei
Mit nevezünk fűtéskész állapotnak?
Fűtéskész állapotnak azt nevezzük, amikor az épület szerkezetileg és gépészetileg elkészült, a fűtési–hűtési rendszer telepítésre került, az ingatlan fűthető és temperálható, azonban a végső belső burkolatok, szaniterek és esztétikai befejezések még nem részei a kivitelezésnek.
A fűtéskész állapot részletes bemutatását az alábbi videó szemlélteti:
👉 https://www.youtube.com/watch?v=CTEi4C5I4VM
Az alapár tartalmazza:
3. III. fokozat – Fűtéskész (standard tartalom)
3.1 Villanyszerelés
- Villany alapszerelés
- Schneider Asfora vagy minőségben egyenértékű, árban megegyező alap szerelvények, a falakba épített végpontok
- Épületenként egy főelosztóval
3.2 Víz- és csatornaszerelés
- Víz alapszerelés alaprajz szerinti adott kiállások darabszámával
- Belső vízhálózat: présidomos több rétegű csőrendszer (PEX-AL-PEX jelleg).
- Szennyvíz: műanyag csőrendszer a terv szerint.
- A közmű rákötést a kiállástól számolva 5 méteren belül tartalmazza az ár
3.3 Gépészet - fűtés/hűtés, szellőztetés, HMV
- Hőszivattyús fűtés/hűtés rendszer gépészeti tervekben meghatározott teljesítménnyel (AUX vagy GREE hőszivattyú készülék)
- Szellőztető rendszer gépészeti tervek szerint (Vortice 350 Avel )
- Ariston Nuos Plus 150 L WiFi hőszivattyús bojler
3.4 Aljzatképzés
- Tapadóhíd (Mapei Primer G vagy azzal megegyező műszaki tulajdonságú)
- 5 cm estrich beton
3.5 Födém
- Gipszkarton álmennyezet (duplavázas kialakítással)
- 1 réteg légzáró, párazáró fólia (REFLEX Hőtükrös légpárnás fólia 92-MLP50)
- Fújt cellulóz födémszigetelés 40 cm vastagságban.
🔑 Kulcsrakész befejezés – részletek
Szakipari munkák
A kulcsrakész befejezés keretében lokáció- és kapacitásfüggően vállalunk szakipari kivitelezést.
A pontos tartalom és ár minden esetben egyedi megállapodás tárgyát képezi.
4. IV. fokozat - Kulcsrakész
4.1 Hidegburkolás
- Fürdőszoba, WC, mosókonyha/háztartási helyiség, előtér
- Falburkolat mennyezetig fürdőszobában és WC-ben
- Költségkeret: nettó 20.000 Ft/m²
4.2 Melegburkolás szobák, nappali, konyha étkező, közlekedő,
- Szobák, nappali, konyha–étkező, közlekedő
- Költségkeret: nettó 15.000 Ft/m² (segédanyagokkal)
4.3 Szaniterek
- Nettó 1.000.000–2.000.000 Ft keretösszegig, típusháztól függően, szerelvényezéssel együtt
4.4 Lámpa
- Lámpatestek nettó 1.000.000–2.000.000 Ft keretösszegig, típusháztól függően, szerelvényezéssel
4.5 Festés
- Q3 minőségben
4.6 Beltéri ajtók kerettel
- Kilincsekkel beszerelve, nettó 150.000 Ft keretösszegig